Services
联系方式Contact us

全国服务热线:15530796367
Q Q:583883685
邮 箱:1340821763@qq.com
联系人:张经理
网 址:kaimac.com
地 址:河北省沧州市泊头市
开发区
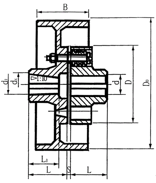
TLL型带制动轮弹性套柱销联轴器图纸
品 牌:金沙澳门唯一官网
TLL带制动轮弹性套柱销联轴器GB4324-1984具体型号TLL1、TLL2、TLL3、TLL4、TLL5、TLL6、TLL7、TLL8、TLL9TLL型带制···...
订购热线:155-30796-367
TLL带制动轮弹性套柱销联轴器GB4324-1984具体型号
TLL1、TLL2、TLL3、TLL4、TLL5、TLL6、TLL7、TLL8、TLL9
TLL1、TLL2、TLL3、TLL4、TLL5、TLL6、TLL7、TLL8、TLL9

TLL型带制动轮弹性套柱销联轴器主要参数和尺寸 mm
型号 | 公称转矩 Tn N·m | 许用转速 [n] r/min | 轴孔直径 d,d1,dz | 轴孔长度 | 尺寸 | 重量 kg | |||||
Y型 | J、Z型 | D0 | B | D | S | A | |||||
L | L1 | ||||||||||
TLL1 | 125 | 3800 | 25~35 | 62~82 | 44~82 | 200 | 85 | 130 | 5 | 45 | 13 |
TLL2 | 250 | 3000 | 32~42 | 82~112 | 60~112 | 250 | 105 | 160 | 5 | 45 | 21 |
TLL3 | 500 | 2400 | 40~48 | 112 | 84~112 | 315 | 132 | 190 | 5 | 45 | 35 |
TLL4 | 710 | 2400 | 45~63 | 112~142 | 84~142 | 315 | 132 | 224 | 6 | 65 | 45 |
TLL5 | 1000 | 2400 | 50~71 | 112~142 | 84~142 | 315 | 132 | 250 | 6 | 65 | 58 |
TLL6 | 2000 | 1900 | 63~95 | 142~172 | 107~172 | 400 | 168 | 315 | 8 | 80 | 100 |
TLL7 | 4000 | 1500 | 80~110 | 172~212 | 132~212 | 500 | 210 | 400 | 10 | 100 | 198 |
TLL8 | 8000 | 1200 | 100~130 | 212~252 | 167~252 | 630 | 265 | 475 | 12 | 130 | 370 |
TLL9 | 16000 | 1000 | 120~170 | 212~302 | 167~302 | 710 | 298 | 600 | 14 | 180 | 641 |
上一篇:TL型弹性套柱销联轴器图纸
下一篇:HL型弹性柱销联轴器图纸







