Services
联系方式Contact us

全国服务热线:15530796367
Q Q:583883685
邮 箱:1340821763@qq.com
联系人:张经理
网 址:kaimac.com
地 址:河北省沧州市泊头市
开发区
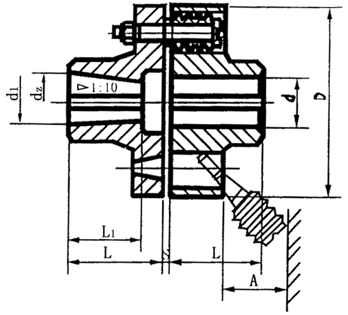
TL型弹性套柱销联轴器图纸
品 牌:金沙澳门唯一官网
TL型弹性套柱销联轴器GB4323-1984具体型号TL1、TL2、TL3、TL4、TL5、TL6、TL7、TL8、TL9、TL10、TL11、 TL12、TL···...
订购热线:155-30796-367
TL型弹性套柱销联轴器GB4323-1984具体型号
TL1、TL2、TL3、TL4、TL5、TL6、TL7、TL8、TL9、TL10、TL11、 TL12、TL13

TL弹性联轴器主要参数与尺寸 mm
型号 | 公称转矩 Tn N.m | 许用转速 [n] r/min | 轴孔直径 d,d1,dz | 轴孔长度 | 尺寸 | 重量 kg | |||
Y | J,J1,Z | D | S | A | |||||
L | L1 | ||||||||
TL1 | 6.3 | 8800 | 9~14 | 20~32 | 14~20 | 71 | 3 | 18 | 1.2 |
TL2 | 16 | 7600 | 12~19 | 32~42 | 20~42 | 80 | 3 | 18 | 1.8 |
TL3 | 31.5 | 6300 | 16~25 | 42~62 | 30~62 | 95 | 4 | 35 | 2.0 |
TL4 | 63 | 5700 | 20~32 | 52~82 | 38~82 | 106 | 4 | 35 | 2.4 |
TL5 | 125 | 4600 | 25~40 | 62~112 | 44~112 | 130 | 5 | 45 | 8.5 |
TL6 | 250 | 3800 | 32~50 | 82~112 | 60~112 | 160 | 5 | 45 | 11 |
TL7 | 500 | 3600 | 40~65 | 112~142 | 84~142 | 190 | 5 | 45 | 16 |
TL8 | 710 | 3000 | 45~80 | 112~172 | 84~172 | 224 | 6 | 65 | 26 |
TL9 | 1000 | 2850 | 50~85 | 112~172 | 84~172 | 250 | 6 | 65 | 32 |
TL10 | 2000 | 2300 | 63~120 | 142~212 | 107~212 | 315 | 8 | 80 | 68 |
TL11 | 4000 | 1800 | 80~140 | 172~252 | 132~252 | 400 | 10 | 100 | 125 |
TL12 | 8000 | 1450 | 100~180 | 212~302 | 167~302 | 475 | 12 | 130 | 220 |
TL13 | 16000 | 1150 | 120~220 | 212~352 | 167~352 | 600 | 14 | 180 | 430 |
工作温度-20~+70℃,传递转矩为6.3~16000N·m,适用Y、J1、Z1型轴孔,对J、Z型孔要分析结构是否允许。
上一篇:没有了!
下一篇:TLL型带制动轮弹性套柱销联轴器图纸







